Устройство и принцип работы
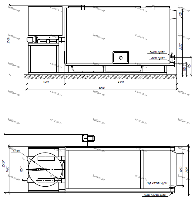
Котел КВм-5,6 на древесных отходах состоит из механической топки, шнека для подачи топлива, ворошителя, системы трубопровода и каркаса, покрытого теплоизоляционным материалом.
Шнеком топливо транспортируется в бункер котла. Во время перемещения топливо насыщается кислородом, что способствует его полноценному горению. Из бункера топливо попадает в топку, где и происходит процесс горения. За счет выделившегося тепла происходит нагревание воды в системе трубопровода, которая уже направляется на нужды потребителя. Газы, образовавшееся в процессе горения, дважды проходят по конвективной части, а затем выводятся.
Шнековый транспортер — это неподвижный желоб с вращающимся шнеком. Топливо подается в желоб и за счет спирального вращения шнека перемещается до конечной точки. Шнек представляет собой винт с лопастями, поэтому подача топлива производится дозировано и равномерно.
Винт приводится в движение электромотором через зубчатую передачу. Во время движения, топливо не вращается вместе с лопастями, а продвигается вперед из-за собственного веса.
Ворошитель представляет собой подвижный вал, который препятствует застреванию топлива в топке и насыщает кислородом нижние слои топлива. Устройство монтируется в топливный бункер и образует «живое дно», которое предотвращает слеживание топлива, дополнительно насыщает горючее кислородом и препятствует застреванию.
Особенности и преимущества
- КПД более 80% обеспечивается за счет большой топливной камеры и системы вентиляции, обеспечивающих полноценное и равномерное сгорание топлива, что помогает рационально использовать и экономить горючее;
- Низкая температура газов сохраняется за счет развитой конвективной поверхности, что увеличивает срок службы оборудования;
- Устойчивости к накипеобразованию способствует гидравлическая схема, предотвращающая застои и появление накипи, образование которой снизило бы КПД при длительном использовании котла;
- Низкие требования к качеству воды избавляют от необходимости подготавливать воду перед использованием;
- Механизация процесса минимизирует участие человека и облегчает труд рабочих;
- Минимальные монтажные работы позволят сэкономить время и средства при установке котельного оборудования.
Размещение и установка
Котел КВм-5,6 на древесных отходах со шнековой подачей и ворошителем поставляется в максимально готовом заводском виде. Отдельно поставляются арматура и комплект автоматики. Это необходимо для сохранения транспортабельности оборудования. При необходимости котел может быть укомплектован также дымососом и золоуловителем.
Котел КВм-5,6 на древесных отходах со шнековой подачей и ворошителем должен быть установлен специалистами. Котел имеет значительный вес, поэтому устанавливается только на пол, на специально подготовленную поверхность. К бетонному фундаменту крепится топка, на которую ставится блок котла. Важно обеспечить доступ кислорода к вентиляционной системе и установить оборудование ровно, используя уровень. Далее собранный котел присоединяется к трубопроводу, устанавливаются запорные устройства, все необходимая арматура и контрольно-измерительные приборы. В конце производится монтаж газовыводящей системы и установка элементов управления.
Эксплуатация и техническое обслуживание
После сборки и монтажа котел подключается к водопроводной системе и начинает работу. Котел КВм-5,6 на древесных отходах со шнековой подачей и ворошителем работает автономно и не требует вмешательства человека в процессе своей работы. Помимо простоты использования котел КВм-5,6 имеет еще и длительный срок службы с сохранением высокого показателя КПД на протяжении всего срока.
Важно отметить, что производить ремонтные работы и техническое обслуживание могут только квалифицированные специалисты, имеющие специальное разрешение. При организации технического обслуживания следует учитывать требования «Правил устройства и безопасной эксплуатации паровых и водогрейных котлов».
Комплектация
Котел КВм-5,6 на древесных отходах со шнековой подачей и ворошителем доставляется отдельными блоками, которые требуют сборки. При заказе котел комплектуется всем необходимым, чтобы правильно установить прибор: запорной арматурой, контрольно-измерительными приборами, частями вентиляционной системы, а также — дымососом и золоуловителем, если есть необходимость очистки дымовых газов.

















