В наличии на складе

Котёл КВм-2,3 на угле с топкой ТШПМ

995 000

Доставим в

Основные характеристики
Вид топкиТШПМ
Вид топливаБурый уголь
ТипКВм
Вид топливаКаменный уголь

Котел КВм-{{moshchnost-mvt}} на угле с топкой ТШПМ используется для отопления зданий различного назначения и горячего водоснабжения, работает он на твердом топливе. Это механический котел с топкой ТШПМ, чьей особенностью является шурующая планка, он имеет принудительные циркуляцию и тягу, а также механические топливоподачу и золошлакоудаление. Котел очень эффективный, дающий большую теплоотдачу.

Характеристики

Цена, руб.
995000
Вид топки
ТШПМ
Вид топлива
Бурый уголь, Каменный уголь
Тип
КВм

Устройство и принцип работы

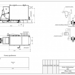
Комплект водогрейного котла КВм-{{moshchnost-mvt}} и механической топки ТШПМ собирается в единый корпус по вертикальной схеме – внизу располагается угольная топка, над ней устанавливается блок котла. Корпус изготавливается из металлического жаростойкого листа и обшивается теплоизоляцией.

Сама топка ТШПМ – это жаростойкая камера с чугунным колосниковым полотном и шурующей планкой, которая выполняет несколько функций. Во-первых, она разравнивает куски угля по решетке, подготавливая раскаленный слой под новую порцию топлива. Во-вторых, шурующая планка сбрасывает остатки прогоревшего топлива в зольник.

Условное обозначение

Водогрейный котел КВм-{{moshchnost-mvt}} на угле с ТШПм, где:

  • К – котел;
  • В – водогрейный;
  • м – механическая топка;
  • {{moshchnost-mvt}} – мощность котла, МВт;
  • Т – топка;
  • Ш – шурующая;
  • П – планка;
  • М – механическая.

Особенности и преимущества

  • КПД более 80% обеспечивается за счет большой топливной камеры и системы вентиляции, обеспечивающих полноценное и равномерное сгорание топлива, что помогает рационально использовать и экономить горючее.
  • Низкая температура газов сохраняется за счет развитой конвективной поверхности, что увеличивает срок службы оборудования.
  • Низкие требования к качеству воды избавляют от необходимости подготавливать воду перед использованием.
  • Автоматизация работы котельной за счет механической топки.
  • Минимальные монтажные работы позволят сэкономить время и средства при установке котельного оборудования.

Размещение и установка

Котел КВм-{{moshchnost-mvt}} должен быть установлен специалистами. Котел имеет значительный вес, поэтому устанавливается только на пол, на специально подготовленную поверхность. Котел устанавливается на подготовленный фундамент, к нему монтируется топка. Важно обеспечить доступ кислорода к вентиляционной системе и установить оборудование ровно, используя уровень. Далее собранный котел присоединяется к трубопроводу, устанавливаются запорные устройства, все необходимая арматура и контрольно-измерительные приборы. В конце производится монтаж газовыводящей системы и установка элементов управления.

Эксплуатация и техническое обслуживание

После сборки и монтажа котелКВм-{{moshchnost-mvt}} подключается к водопроводной системе и начинает работу. Котел КВм-{{moshchnost-mvt}} работает автономно и не требует вмешательства человека в процессе своей работы. Помимо простоты использования котел КВм-{{moshchnost-mvt}} имеет еще и длительный срок службы с сохранением высокого показателя КПД на протяжении всего срока.

Важно отметить, что производить ремонтные работы и техническое обслуживание могут только квалифицированные специалисты, имеющие специальное разрешение. При организации технического обслуживания следует учитывать требования «Правил устройства и безопасной эксплуатации паровых и водогрейных котлов».

Комплектация

Котел КВм-{{moshchnost-mvt}} поставляется в виде двух блоков (блок котла и блока топки) с щитком управления. Котел укомплектован всем необходимым для правильной установки: клапанами, запорной арматурой и КИП.

Оглавление
Галерея производства
Бесплатная консультация
по любым вопросам
Или позвоните нам по телефону
8 (3952) 40-71-36
Вы смотрели