Котел КВр на угле водогрейный агрегат с ручной системой топливоподачи. Используется для тепло- и водообеспечения зданий промышленности, жилых домов, складов, административных и общественных помещений. Максимальная температура нагрева жидкости в котлах КВр достигает 115 °С. В качестве топлива используется бурый и каменный уголь.
Устройство и принцип работы
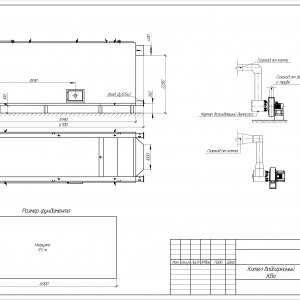
Водогрейный котел КВа-{{moshchnost-mvt}} состоит из корпуса котла, который находится под давлением сетевой воды, дверей котла, блока безопасности котла с реле максимального давления, манометром, предохранительным клапаном и устройством для удаления воздуха, дымохода с взрывным клапаном и дренажом для отведения конденсата, блочной вентиляторной горелки, блока управления.
Процесс возгорания происходит при смешивании воздуха с топливом.
Условное обозначение
Котел КВа-{{moshchnost-mvt}}, где:
- К – котел;
- В – водогрейный;
- а – автоматизированная горелка;
- {{moshchnost-mvt}} – теплопроизводительность.
Особенности и преимущества
- КПД более 90% обеспечивается большой топливной камерой, которая способствует полноценному сгоранию топлива и помогает рационально использовать горючее;
- Минимальные затраты на горючее способствует экономичному использованию;
- Устойчивость к образованию накипи образуется благодаря гидравлической схеме, предотвращающей застои и налипания, появление которых снизило бы КПД при длительном использовании котла;
- Совместим с множеством горелок, позволяя при выборе ориентироваться на собственные нужны;
- Автоматика безопасности сокращает вероятность поломки и увеличивает срок службы оборудования;
- Автоматизация процесса делает работу котельной автономной и упрощает труд кочегара;
- Низкие требования к качеству воды избавляют от необходимости подготавливать воду перед использованием;
- Небольшой размер котла позволит уместить его даже в небольших котельных;
- Минимальные монтажные работы сэкономят время и средства при установке котельного оборудования.
Размещение и установка
Важно установить котел КВа-{{moshchnost-mvt}} ровно, используя уровень, и обеспечить доступ воздуха к системам воздухоподачи.
Собранный котел подключается к системам водоснабжения, на него устанавливается запорная арматура и КИП. Финальной стадией сборки является монтаж газовыводящей системы и установка элементов управления. После проверки сборки котла и его тестового запуска, котел КВа-{{moshchnost-mvt}} готов к эксплуатации.
При организации технического обслуживания следует учитывать требования «Правил устройства и безопасной эксплуатации паровых и водогрейных котлов».
Эксплуатация и техническое обслуживание
Водогрейный котел КВа-{{moshchnost-mvt}} очень прост в эксплуатации. После монтажа котел подключается к водопроводной системе и начинает работу. Котел КВа-{{moshchnost-mvt}} полностью автономен, не требует специальной подготовки воды. Помимо простоты использования котел КВа-{{moshchnost-mvt}} имеет еще и более длительный срок службы, чем, например, простой бойлер.
Важно отметить, что производить ремонтные работы и техническое обслуживание могут только квалифицированные специалисты, имеющие специальное разрешение. При организации технического обслуживания следует учитывать требования «Правил устройства и безопасной эксплуатации паровых и водогрейных котлов».
Комплектация
Котлы КВа-{{moshchnost-mvt}} доставляются в максимально собранном заводском виде и комплектуются всем необходимым для правильной установки прибора: запорной арматурой, контрольно-измерительными приборами и инструкцией по эксплуатации. Горелка в комплект не входит.








