1. Котел КВр – это водогрейный котел, предназначенный для работы в стационарных и модульных котельных. Котел имеет ручную топку и систему ручной очистки от золы. Обладает высоким показателем КПД за счет большой топливной камеры и системы воздуха подачи, которые способствуют полноценному сжиганию топлива.
Устройство и принцип работы
Котел КВа-{{moshchnost-mvt}} состоит из двух основных блоков: топки и конвективной камеры. Горелкой топливо направляется в камеру, сжигается, нагревая теплоноситель и трубопровод. Мощность работы горелки регулируется, что позволяет поддерживать стабильную температуру воды в трубах. Гидравлическая схема защищена от перегрева соприкасающихся с теплоносителем поверхностей, чем увеличивает срок службы изделия и избавляет от подготовки воды. Газы выходят из котла без дымососа, через трубу.
Водогрейный котел КВа-{{moshchnost-mvt}} имеет систему безопасности. На задней стенке расположен взрывной клапан, который защитит оборудование от поломки в случае скачка давления. Горелка оснащена автоматическим регулированием, которое поддерживает стабильное давление, прекращая подачу топлива при высоких показателях и увеличивая – при низких.
Условное обозначение
Котел КВа-{{moshchnost-mvt}}, где:
- К – котел;
- В – водогрейный;
- а – автоматизированная горелка;
- {{moshchnost-mvt}} – теплопроизводительность.
Особенности и преимущества
- Эффективное сжигание топлива;
- Высокий показатель КПД – более 90%;
- Систем поддержания высокого показателя КПД на протяжении всего срока использования;
- Устойчивость к накипи;
- Отсутствие водоподготовки;
- Автоматизация процессов;
- Автоматика безопасности.
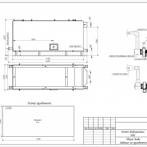
Размещение и установка
Важно установить котел КВа-{{moshchnost-mvt}} ровно, используя уровень, и обеспечить доступ воздуха к системам воздухоподачи.
Собранный котел подключается к системам водоснабжения, на него устанавливается запорная арматура и КИП. Финальной стадией сборки является монтаж газовыводящей системы и установка элементов управления. После проверки сборки котла и его тестового запуска, котел КВа-{{moshchnost-mvt}} готов к эксплуатации.
При организации технического обслуживания следует учитывать требования «Правил устройства и безопасной эксплуатации паровых и водогрейных котлов».
Эксплуатация и техническое обслуживание
Водогрейный котел КВа-{{moshchnost-mvt}} очень прост в эксплуатации. После монтажа котел подключается к водопроводной системе и начинает работу. Котел КВа-{{moshchnost-mvt}} полностью автономен, не требует специальной подготовки воды. Помимо простоты использования котел КВа-{{moshchnost-mvt}} имеет еще и более длительный срок службы, чем, например, простой бойлер.
Важно отметить, что производить ремонтные работы и техническое обслуживание могут только квалифицированные специалисты, имеющие специальное разрешение. При организации технического обслуживания следует учитывать требования «Правил устройства и безопасной эксплуатации паровых и водогрейных котлов».
Комплектация
Котлы КВа-{{moshchnost-mvt}} доставляются в максимально собранном заводском виде и комплектуются всем необходимым для правильной установки прибора: запорной арматурой, контрольно-измерительными приборами и инструкцией по эксплуатации. Горелка в комплект не входит.








