Устройство и принцип работы
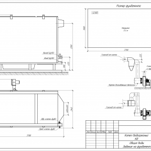
Котел КВ-ТС-6.2 на угле состоит из следующих конструктивно важных элементов: емкость сгорания топлива и топка, дверца для заброса топлива, подводная система (может применяться емкость для нагрева воды, а может трубная система), выхлопная труба, контейнер для остатков горения, а также имеется компьютерный терминал для управления и подачи сигнала тревоги обслуживающему персоналу в случае превышения максимально допустимых параметров работы котла. Принцип работы котла КВм-6.2 предельно прост — в топку рабочий забрасывает уголь, в ней он сгорает. В результате сгорания топлива выделяется большой объем теплоты, которая нагревает емкость с водой, которая циркулирует между резервуарами. Отходы горения — газ и зола удаляются через выхлопную трубу и контейнер для отходов. Управление котлом ручное с помощью компьютерного терминала. С его помощью происходит настройка режима горения и системы безопасности в случае превышения предельно допустимых параметров.
В качестве топлива НЕ используются: высокозольный высоковлажный бурый уголь, сланцевые породы, торф и отходы углепромышленности.
Условное обозначение
Водогрейный котел КВ-ТС-6.2, где:
- К – котел;
- В – водогрейный;
- Т – твердотопливный;
- С – слоевое сжигание топлива;
- 6.2 — мощность котла, МВт.
Особенности и преимущества
- Высокий процент КПД (более 80%);
- Длительность эксплуатации;
- Возможность автоматизации процессов;
- Эффективный расход топлива за счет слоевого сжигания;
- Нет необходимости в предварительной водоподготовке;
- Вместительность топливной камеры.
Размещение и установка
Водогрейный котел КВ-ТС-6.2 должен быть установлен специалистами согласно необходимым требованиям с учетом «Правил устройства и безопасной эксплуатации паровых и водогрейных котлов». Котел имеет значительный вес, поэтому устанавливается только на пол, на специально подготовленную поверхность. Для установки котла не требуется заливать фундамент: котел ставится на раму и опоры, а опоры крепятся к подготовленной поверхности болтами.
Эксплуатация и техническое обслуживание
Производить ремонтные работы и техническое обслуживание могут только квалифицированные специалисты, имеющие специальное разрешение. При организации технического обслуживания следует учитывать требования «Правил устройства и безопасной эксплуатации паровых и водогрейных котлов».
Комплектация
Водогрейные котлы КВ-ТС-6.2 доставляются в максимально собранном заводском виде и комплектуются всем необходимым для правильной установки прибора: запорной арматурой, контрольно-измерительными приборами и инструкцией по эксплуатации.













