Устройство и принцип работы
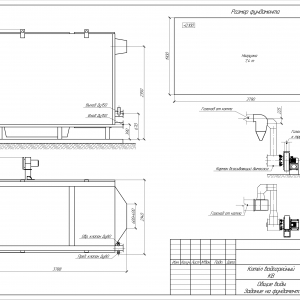
Котел КВ-ТС-4.9 на угле состоит из следующих конструктивно важных элементов: емкость сгорания топлива и топка, дверца для заброса топлива, подводная система (может применяться емкость для нагрева воды, а может трубная система), выхлопная труба, контейнер для остатков горения, а также имеется компьютерный терминал для управления и подачи сигнала тревоги обслуживающему персоналу в случае превышения максимально допустимых параметров работы котла. Принцип работы котла КВм-4.9 предельно прост — в топку рабочий забрасывает уголь, в ней он сгорает. В результате сгорания топлива выделяется большой объем теплоты, которая нагревает емкость с водой, которая циркулирует между резервуарами. Отходы горения — газ и зола удаляются через выхлопную трубу и контейнер для отходов. Управление котлом ручное с помощью компьютерного терминала. С его помощью происходит настройка режима горения и системы безопасности в случае превышения предельно допустимых параметров.
В качестве топлива НЕ используются: высокозольный высоковлажный бурый уголь, сланцевые породы, торф и отходы углепромышленности.
Условное обозначение
Водогрейный котел КВ-ТС-4.9, где:
- К – котел;
- В – водогрейный;
- Т – твердотопливный;
- С – слоевое сжигание топлива;
- 4.9 — мощность котла, МВт.
Особенности и преимущества
- Высокий процент КПД (не менее 85%) обусловлен большим объемом топливной камеры и стимуляцией процесса горения;
- Нет необходимости в предварительной водоподготовке;
- Длительный срок эксплуатации;
- Топливо расходуется полностью, что делает устройство более экономичным в использовании;
- Максимальная заводская сборка.
Размещение и установка
Особенных требований к установке котла КВ-ТС-4.9 нет, главное обеспечить надежную систему циркуляции воды, чтобы жидкость не перегревалась и не создавала лишнюю нагрузку на емкость с водой, и на весь котел в целом. К обслуживанию котла можно отнести естественно заброску топлива рабочим, а также очистку контейнера от золы и сажи в периодическом режиме (в зависимости от зольности топлива, которое используется в котле).
Эксплуатация и техническое обслуживание
Производить ремонтные работы и техническое обслуживание могут только квалифицированные специалисты, имеющие специальное разрешение. При организации технического обслуживания следует учитывать требования «Правил устройства и безопасной эксплуатации паровых и водогрейных котлов».
Комплектация
Котел КВ-ТС-4.9 поставляется в моноблочном (котел) или двублочном (котел и топка) исполнении. При необходимости, поставляется третий блок – воздухоподготовитель. Топки котла КВ-ТС изготовлены из труб, как и конвективные пакеты. Агрегаты комплектуются колосниковыми цепными решетками обратного хода с пневмомеханическими забрасывателями.













